HOUSE PLANS 350 Square Meters
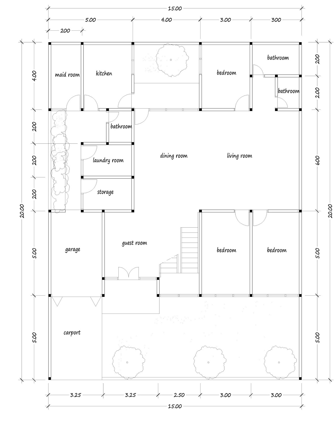
Two-storey, spacious house of approximately 360 square meters, the size of land 15 meters x 20 meters. The room on the first floor: three bedrooms size 3 mx 5 m, one-bedroom size 3 mx 4 m, room for guests 3 mx 4 m, dining room and living room 6 mx 10 m, kitchen 3 mx 4 m, garage 3 mx 5 m, 2 m x3 m warehouse, maid room 2 mx 4 m, 2m x 3m laundry room, bathroom 2 mx 3 m, two bathrooms 1.5 mx 2 m.
The room second floor: five bedrooms size of 3 m x 5 m, one bedroom sizes 3m x 4 m, family room 38 square meters, bathroom 2m x 3m, a bathroom 1.5 m x 2 m. Void fairly broad measure 4.5 m x 7 m.
![]() |
| 1st FLOOR HOUSE PLAN 350 M2-A |
![]() |
| 2nd FLOOR HOUSE PLAN 350 M2-A |
#HOUSE PLAN 350 M2-B
Two-storey house is almost the same with house plans above, the position of the ladder so different that the number of bedrooms is reduced while expanding the living room. Housing area of approximately 360 square meters, the size of land 15 meters x 20 meters.
The room on the first floor: two bedrooms of size 3 mx 5 m, one-bedroom size 3 mx 4 m, room for guests 3 mx 4 m, dining room and family room 6 mx 10 m, kitchen 3 mx 4 m, garage 3 mx 5 m, 2 m x3 m warehouse, maid room 2 mx 4 m, 2m x 3m laundry room, bathroom 2 mx 3 m, two bathrooms 1.5 mx 2 m.
The room second floor: four bedrooms size of 3 m x 5 m, one bedroom sizes 3m x 4 m, living room 38 square meters, bathroom 2m x 3m, a bathroom 1.5 m x 2 m. Void fairly broad measure 4.5 m x 7 m.
![]() |
| 1st FLOOR HOUSE PLAN 350 M2-B |
![]() |
| 2nd FLOOR HOUSE PLAN 350 M2-B |



