The building floor area of approximately 165 square meters
First floor :
One master bedroom, one bedroom, kitchen, garage, living room, dining room, two bathrooms, patio, carport.
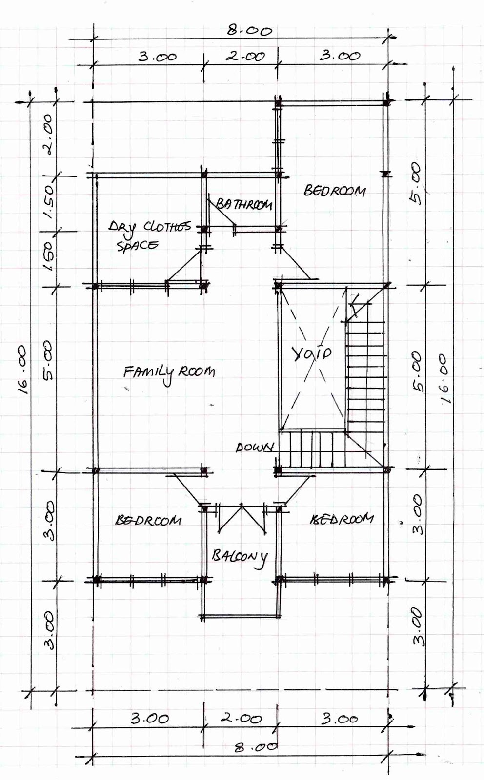
Second floor :
Three bedrooms, family room, laundry room and drying clothes, one bathroom, balcony.

